Sie sind hier: Startseite
Weiter zu: Ihr Vorteil Hausprogramm Schwedenhaus Unsere Leistungen Herstellung Montage Realisierte Bauvorhaben Jobs Kontakt Impressum Datenschutz
Allgemein:

Hanghäuser - Bauen in Hangsituationen

Mehr Wohnraum schaffen durch Hangbebauung

Hanghäuser ermöglichen die Schaffung von hochwertigem zusätzlichen Wohnraum. Gute Belichtungsverhältnisse zumindest für einen Teil der Räume im KG eröffnen hier in der Regel interessante Möglichkeiten. Kostentechnisch ist derartiger Kellerraum aufgrund des hohen Ausbaustandards mit den Kosten für den übrigen Wohnraum gleichzusetzen.

Folgende grundsätzliche Fragestellungen bedürfen unter anderem der Klärung:
- von wo aus wird erschlossen
- wie stellt sich die Hangsituation dar, wo liegt meine Bezugshöhe für Oberkante Fertigfußboden EG
- wie ist der Hang im Bezug zu Sonneneinstrahlung positioniert
- wie groß ist der Höhenunterschied des Grundstückes über das Hausmaß gemessen zu den Bezugshöhen des erschließenden Straßenniveaus
- wie gestalte ich den Hang in seiner Gesamtheit und zu den benachbarten Grundstücken hin
- Anbindung an Versorgungsträger und Kanalisation
- Anbindung der Wohngeschosse an den Garten

Planungsbeispiele für Hangbebauungen

Planungsbeispiel - Einfamilienhaus E+D

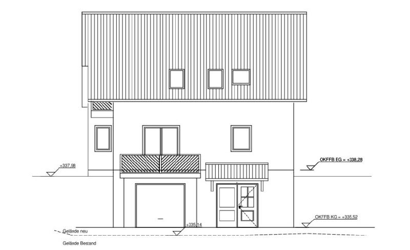
Zum hangabgewandten Bereich ist die Südseite des Hauses orientiert, gleichzeitig verläuft südlich des Hauses die Erschließungsstraße. An der Südseite des Hauses befindet sich der Hauseingang ebenso die Garagenzufahrt.

Der Hauseingang befindet sich auf dem Keller-/Hangniveau. Die Garage samt Zufahrt von Süd befindet sich ebenfalls auf Kellerniveau. Das Garagendach dient im EG als großzügige Terrasse mit schönem Ausblick

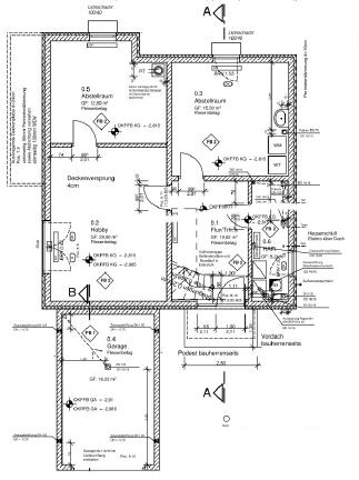
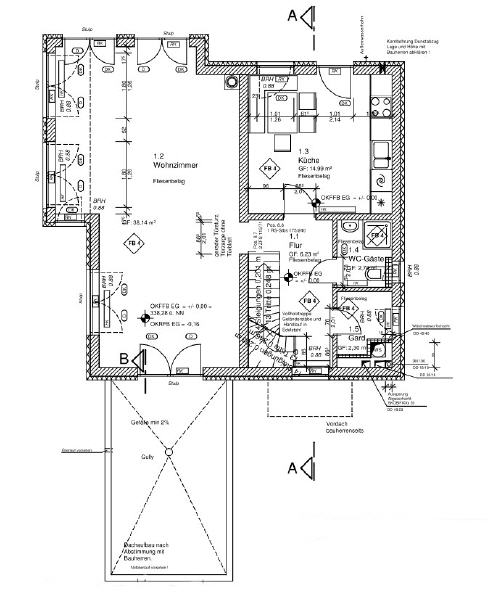
Das Raumprogramm sieht wie folgt aus:
KG: Hobbyraum, Kellerräume, Haustechnik
EG: Kochen, Wohnen, Essen
DG: Schlafen, Kinderzimmer, Bad

Durch die Garage vor der Südseite erhält das Haus im KG nur von den Giebelseiten im hangabgewandten Bereich des KG eine Belichtung.

Der Balkon bringt zusätzlich einen attraktiven Ausblick an der Westseite im DG.

Deutliche Abgrabungen im hangzugewandten Bereich waren notwendig um einen Austritt im EG nordseitig zu schaffen.

Das Wohnen EG bietet auch eine großzügige Befensterung in 3 verschiedene Himmelsrichtungen

Gehe zu: Innenausbau mit wohngesundem Lehm Häuser auf schmalen Grundstücken